Home » 16676 Neil Court #6, La Pine, OR 97739 (MLS # 220215680)
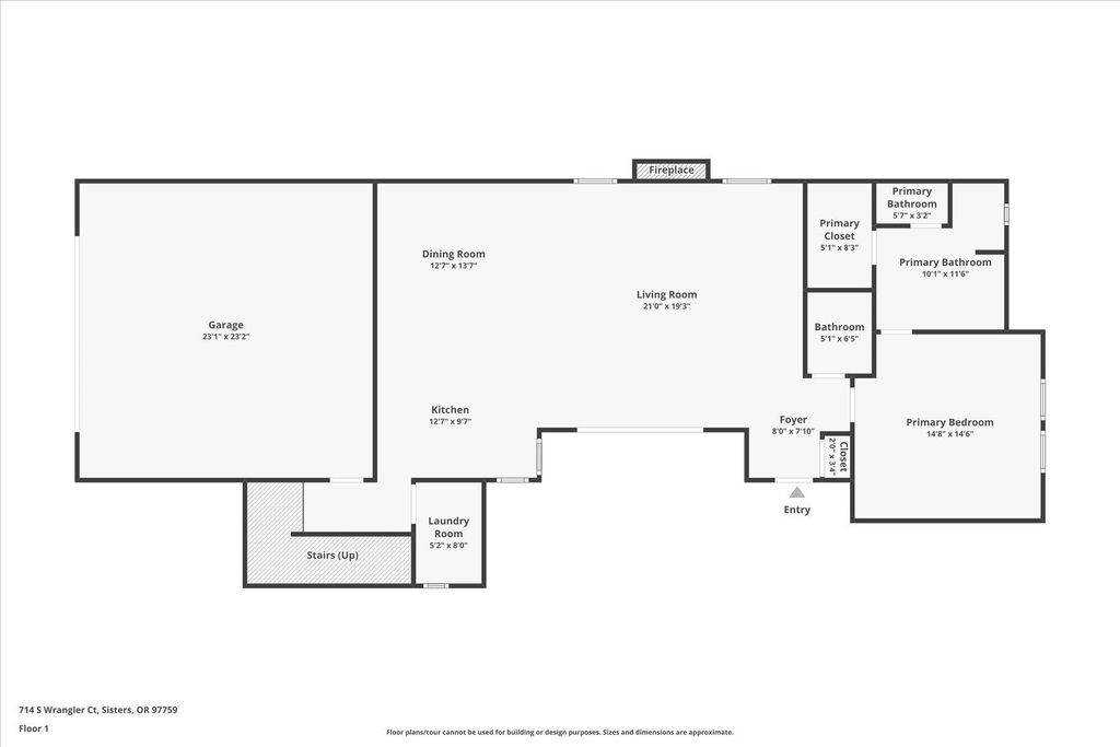
714 S Wrangler Court, Sisters, OR 97759 (MLS # 220215699)
Airbnb with Additional Tax Lot! This exceptional short-term rental adjacent to Five Pine Lodge includes a fully developable 2nd tax lot. A unique income-generating property w/ future potential. Enjoy immediate access to 3 Creeks Brewery, Sisters Athletic Club, & the local theater. Guests will rave over this location just minutes from downtown w/ near instant access to public lands & Peterson Ridge. This modern cabin features a vaulted great room, a cozy fireplace, & a sleek kitchen w/ solid surface counters & massive breakfast bar, perfect for gatherings. A fully featured primary suite impresses w/ dual vanity & floor-to-ceiling tile shower, & well-appointed guest rooms & XL bonus room ensure a top-tier stay. Outside, the private hot tub overlooking the wooded lot, paver patio, & BBQ area create a private & serene retreat. Whether you expand, develop, or continue its proven Airbnb success, this is a rare chance to own a thriving rental in one of Oregon's most sought-after destinations!
Property Type(s):
Single Family
|
Last Updated
|
2/19/2026
|
Tract
|
Highland Village
|
|
Year Built
|
2017
|
Garage Spaces
|
2.0
|
|
County
|
Deschutes
|
SCHOOLS
| Elementary School |
Sisters Elem |
| Jr. High School |
Sisters Middle |
| High School |
Sisters High |
Additional Details
| AIR |
Ceiling Fan(s), Central Air, Heat Pump |
| AIR CONDITIONING |
Yes |
| APPLIANCES |
Dishwasher, Disposal, Dryer, Microwave, Oven, Range, Refrigerator, Washer, Water Heater |
| CONSTRUCTION |
Frame |
| FIREPLACE |
Yes |
| FOUNDATION |
None |
| GARAGE |
Yes |
| HEAT |
Electric, Forced Air, Heat Pump |
| INTERIOR |
Breakfast Bar, Ceiling Fan(s), Double Vanity, Open Floorplan, Pantry, Vaulted Ceiling(s), Walk-In Closet(s), Wired for Sound |
| LOT |
10019 sq ft |
| LOT DESCRIPTION |
Sprinklers In Front, Sprinklers In Rear |
| PARKING |
Alley Access, Attached, Garage Door Opener |
| POOL DESCRIPTION |
None |
| SEWER |
Public Sewer |
| STORIES |
2 |
| STYLE |
Bungalow |
| SUBDIVISION |
Highland Village |
| TAXES |
4926.17 |
| VIEW |
Yes |
| VIEW DESCRIPTION |
Neighborhood |
| WATER |
Public |
| ZONING |
R |
Listed with eXp Realty, LLC
©2026 Oregon Datashare (KCAR | MLSCO | SOMLS). All rights reserved. The data relating to real estate for sale on this web site comes in part from the Internet Data Exchange Program of the Oregon Datashare. Real estate listings held by IDX Brokerage firms other than Elite Real Estate Company are marked with the Internet Data Exchange logo or the Internet Data Exchange thumbnail logo and detailed information about them includes the name of the listing Brokers. Information provided is for consumers' personal, non-commercial use and may not be used for any purpose other than to identify prospective properties the viewer may be interested in purchasing. The consumer will not copy, retransmit nor redistribute any of the content from this website. Information provided is deemed reliable, but not guaranteed. Listing courtesy of Elite Real Estate Company. Data last updated: 2/20/26 6:11 AM PST.
This IDX solution is (c) Diverse Solutions 2026.
Location